花木御翠园·浦东70年社区商铺 地址_户型图_房价
扫描到手机,新闻随时看
扫一扫,用手机看文章
更加方便分享给朋友
上海浦东70年产权社区铺【ALACER·御翠-御翠园】【花木御翠园】-售楼处电话
优惠预约热线:先拨打400 9939 116听到提示音后再拨分机号907【售楼中心】
微信咨询:134-0209-6389(复制粘贴)加微信请备注:花木御翠园【领取优惠】
★★★ 预约参观,错峰接待,感谢配合!◆◆◆售楼中心—欢迎来电咨询〢—匠心钜制恭迎品鉴!预约看房享免费看房车接送、自驾有报销;
ALACER·御翠

城市会客厅 重餐饮 九大豪宅集群 70年社区商业
基本信息

1、产权期限:70年产权,至2068年
2、项目位置:浦东新区花木路1707号,南临花木路主干道,西临御翠园高端社区主入口
3、楼层&面积:地上2层商业面积2555㎡,及地下1层商业及独享车位面积近4000㎡
4、层高:1层约4.5米,2层4.5-6.5米
5、商铺:105㎡-170㎡(可多样化组合选项)
6、总价:1050万起(自由灵活选铺)
7、得房率:高于同类竞品商业得房率
8、外摆:1层提供超大外摆空间,2层提供视野广阔的露台空间
9、交付标准:空调、排烟、厨房上下水、卫生间上下水(部分商铺),楼板承重200KG/㎡
10、电梯&楼梯:2部直梯,3个宽楼梯
11、物业:绿城服务提供高标准金牌管家式服务
项目区位

周边住宅
商业位于上海最成熟的城市副中心——花木国际社区,周边9大豪宅区林立,近万户鼎豪环绕,住宅均价25-30万,总价3000万-5亿,板块汇集了顶级消费人群。
周边办公及展览

①隔壁嘉里城、紫竹国际,汇集国金证券、兴全基金、今日资本、景林资产、达能中国、劳斯劳斯中国等外资、科技、基金公司,可为本商业带来工作日持续的高消费力。
②隔壁博览中心,每年上千万人次的展会经济,带来巨大人流,让本商业具备超人气潜质。
周边环境

世纪公园是浦东之肺,天然氧吧,是集跑步、骑行、露营等多种流行形态的运动圣地。
交通抵达
罗山路高架、龙东高架、内环线等多条主干道环绕,7号地铁线5号口步行300米可达。
外部导流
本商业位于御翠园别墅区主出入口,是小区人流车流的必经之地,东面街铺亦可将人流导向本商业。
商场外摆
花岗岩铺设外摆,20-120平米不等,大大增加实用面积。午后时光在户外享受一份美味的下午茶,配上怡人的花艺布景,拍上一张美照,也别有一番趣味。
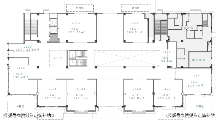
一楼
1、中庭
公区整体采取简约风,几何线条感拉满,棕褐色木纹装饰的艺术画廊式中庭搭配以典雅厚重的酒红色铝板,给人一种精致、舒适而恰到好处的美感。
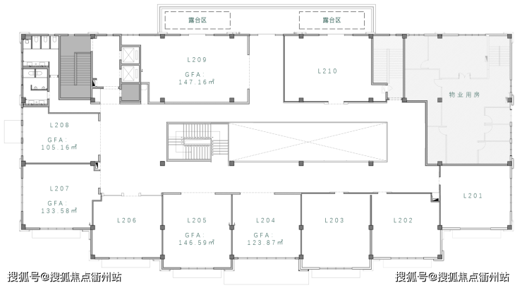
一楼平面图及业态规划(主打精致社交休闲:中古奢侈品、户外运动零售、鲜花、美容美发、休闲餐饮、咖啡烘焙……)

二层商铺挑高6.5米,得房率高,均有大面积落地窗和对外展示面,提供足够的通透感,可打造立体营业空间。


2、露台
可俯瞰御翠园,远眺陆家嘴,绝美视角,出片率爆棚。
二楼平面图及业态规划(主打高端品质生活:品质餐饮、高端酒吧、私宴会客、私教运动、SPA……)



咨询热线:先拨打400 9939 116听到提示音后再拨分机号907【提前来电预约看房】
客户经理:134-0209-6389(微信同号)加微信请备注楼盘名称:【花木御翠园】
1、本资料为邀约邀请,不作为最终交付标准或承诺;买卖双方的权利义务以双方签订的《商品房买卖合同》及其补充协议、附件等书面文件为准;
2、相关宣传内容不排除因政府相关规划、规定及出卖人分期规划、未能控制等原因发生变化;出卖人将不定期对宣传材料进行修改,敬请留意最新资料!
3.——免责声明:本文中部分文字图片来源于网络 如有错误或侵权,告知即删!——
声明:本文由入驻焦点开放平台的作者撰写,除焦点官方账号外,观点仅代表作者本人,不代表焦点立场。
