杨浦五角场 海尚里公寓_杨浦(海尚里复式公寓)房价_户型图_地址_楼盘详情

衢州楼市 2023-07-08 11:36:39
用手机看
扫描到手机,新闻随时看

扫一扫,用手机看文章
更加方便分享给朋友

✨✨咨询热线:先拨打400 9939 116听到提示音后再拨分机号906【预约看房】 郑重承诺:电话预约可享开发商直售价格!享优先看房+优质房源!不收任何费用!一对一专业服务!中介勿扰!

杨浦五角场【海尚里复式公寓】——5.5米层高、70年产权精装现房!

咨询热线:先拨打400 9939 116听到提示音后再拨分机号906【预约看房】

微信咨询:150 2683 5657(微信同号)加微信请备注楼盘名称:【杨浦·海尚里】

✨✨预约看房——欢迎来电咨询〢——匠心钜制恭迎品鉴!

郑重承诺:电话预约可享开发商直售价格!享优先看房+优质房源!不收任何费用!一对一专业服务!中介勿扰!

项目信息:杨浦海尚里

售楼处电话:400 9939 116,转分机号906

项目地址:上海市杨浦区黄兴路1818号

项目板块区位:杨浦五角场商圈

产权:70年

总高:11层

层高:5.5米

得房率:单层71%(实际可达150%)

在售面积:82-114平

单价:7.5w-7.7w

总价:630w-860w

梯户比:2梯6户

物业费:4.9元/平/月

水费:6元一吨

电费:1元一度

停车费:地下550元/月

交通:距离地铁10号线五角场站约800米,18号线国权路站约900米。自驾3分钟可达中内环,项目楼下就有538路、713路、90路多路公交车。

商业配套:项目对面九隆坊商业中心。距离五角场商圈仅800米,有合生汇,万达广场,百联又一城等多个大型商场。距离大润发400米。

咨询电话:售楼处电话:先拨打400 9939 116,听到提示音后再拨分机号906

医疗配套:项目周边2公里有新华医院,海军军医大学第一附属医院等多所三甲医院。

休闲:周边900米有约40万方黄兴公园。黄兴体育公园。

售楼处电话:400 9939 116,转分机号906

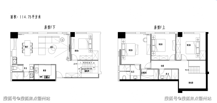
户型图:

售楼处电话:400 9939 116,转分机号906

杨浦五角场【海尚里复式公寓】——5.5米层高、70年产权精装现房!

咨询热线:先拨打400 9939 116听到提示音后再拨分机号906【预约看房】

微信咨询:150 2683 5657(微信同号)加微信请备注楼盘名称:【杨浦·海尚里】

✨✨预约看房——欢迎来电咨询〢——匠心钜制恭迎品鉴!

郑重承诺:电话预约可享开发商直售价格!享优先看房+优质房源!不收任何费用!一对一专业服务!中介勿扰!

1、本资料为邀约邀请,不作为最终交付标准或承诺;买卖双方的权利义务以双方签订的《商品房买卖合同》及其补充协议、附件等书面文件为准;

2、相关宣传内容不排除因政府相关规划、规定及出卖人分期规划、未能控制等原因发生变化;出卖人将不定期对宣传材料进行修改,敬请留意最新资料!

声明:本文由入驻焦点开放平台的作者撰写,除焦点官方账号外,观点仅代表作者本人,不代表焦点立场。