花语前湾(上海闵行)花语前湾首页网站丨闵行花语前湾楼盘详情|户型
扫描到手机,新闻随时看
扫一扫,用手机看文章
更加方便分享给朋友
上海闵行中铁建花语前湾
售楼处电话:400 9939 116听到提示音后再拨分机号905【售楼中心】
售楼经理:172-7465-7076【微信同号】 微信添加请备注楼盘名称和需求享优惠
案场限流 看房请务必提前来电预约登记
请务必致电与销售确认时间,仅预约客户可进入销售现场,感谢您的支持
#最新消息#
13号线 开市客/印象城旁
「花语前湾」三期 正在热销
售楼处电话:400 9939 116听到提示音后再拨分机号905【售楼中心】
将推约90-123㎡3-4房
均价68878元/㎡
花语前湾效果图
花语前湾|效果图
热销密码(楼盘价值点):
售楼处电话:400 9939 116听到提示音后再拨分机号905【售楼中心】(温馨提示:本项目参观样板间采取预约制,为了不耽误您的行程,过来参观请提前来电进行预约看房或咨询项目详情)
1、大虹桥核心区&上海十四五规划前湾核心区
2、两大商圈旁(开市客&印象城)
3、13号线延伸段轨交旁
4、前湾产业规划(生物医药&文创电竞&数字经济)
5、咫尺12年制华师大强劲公立教育配套

示范区实景图
01
基本信息
2023年7月12日上海第二批次土拍中,中国铁建以总价约61.47亿元竞得闵行区华漕镇MHP0-1402单元16-05、17-04地块(即中铁建·花语前湾),地块面积6.01公顷,容积率2.5,房地联动价69500元/㎡。售楼处电话:400 9939 116听到提示音后再拨分机号905【售楼中心】
中国铁建花语前湾项目地块东至纪翟路、南至雅乐路、西至双鹤浦、北至方林浦,距离13号线/示范区线芳乐路站约600米,西侧紧邻开市客和印象城。
作为中国铁建地产2023年的花语系迭新之作,中国铁建·花语前湾,对建筑、景观、产品设计等方面进行深化,围绕“静谧、优雅、隐逸、美学、平衡”五个关键词打磨产品,在快速的城市节奏中营造一方归心宁静的栖所。
独有的新江南风格:
中国铁建花语前湾于约23万方土地之上,以一轴三带四园,打造现代东方风格的写意景观,让家园温度可感可视化的同时,也让项目贴合前湾“东潮西溯”特征。
售楼处电话:400 9939 116听到提示音后再拨分机号905【售楼中心】
效果图,以实际交付为准
中国铁建花语前湾项目规划“一轴三带四园”景观布局、约800㎡阳光草坪、三大中心花园、生态景观一应俱全,在花语前湾,生活是极其丰富多彩的,两块地块中间设有260米长邻里生活街区,约4000㎡沿街商铺配套,极大便利了业主生活娱乐购物需求,将成为社区重要的时尚、社交、休闲聚场。
效果图,以实际交付为准
强烈的尊贵感和归家仪式感:
项目主入口仿照五星级酒店打造环岛式落客区,超48米星级酒店式迎宾门廊、约10米挑高归家大堂。
效果图,以实际交付为准
并放弃多套房源,设计了架空层,设有读书空间、茶室、儿童滑梯等功能空间,让邻里之间在有趣的社群中变得更亲近。
效果图,以实际交付为准售楼处电话:400 9939 116听到提示音后再拨分机号905【售楼中心】
02
推售信息
中国铁建花语前湾将推约90㎡/97㎡/101㎡/118㎡3房&123㎡4房(不过主力户型是101㎡),共计394套房源,均价68878元/㎡,预计将于近期开启认购!
「三期推售楼栋分布」
售楼处电话:400 9939 116听到提示音后再拨分机号905【售楼中心】(温馨提示:本项目参观样板间采取预约制,为了不耽误您的行程,过来参观请提前来电进行预约看房或咨询项目详情)
效果图,以实际交付为准
三期部分户型图发布
「约101㎡ 3房2厅2卫」
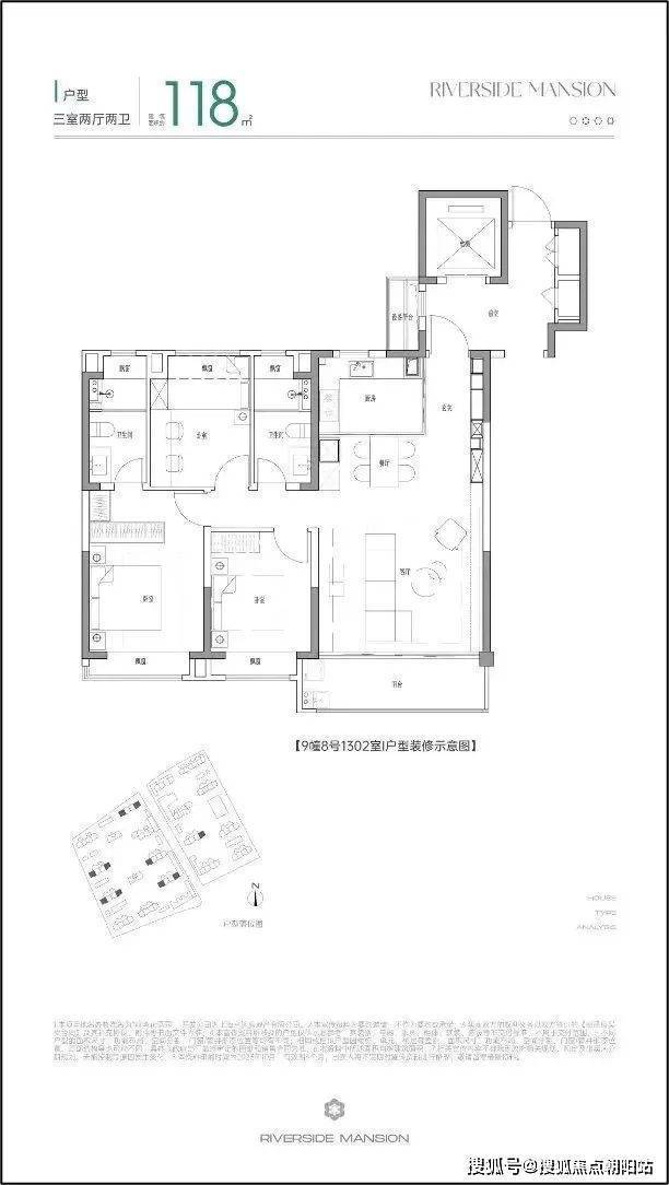
「约118㎡ 3房2厅2卫」
「约90㎡ 3房2厅1卫」
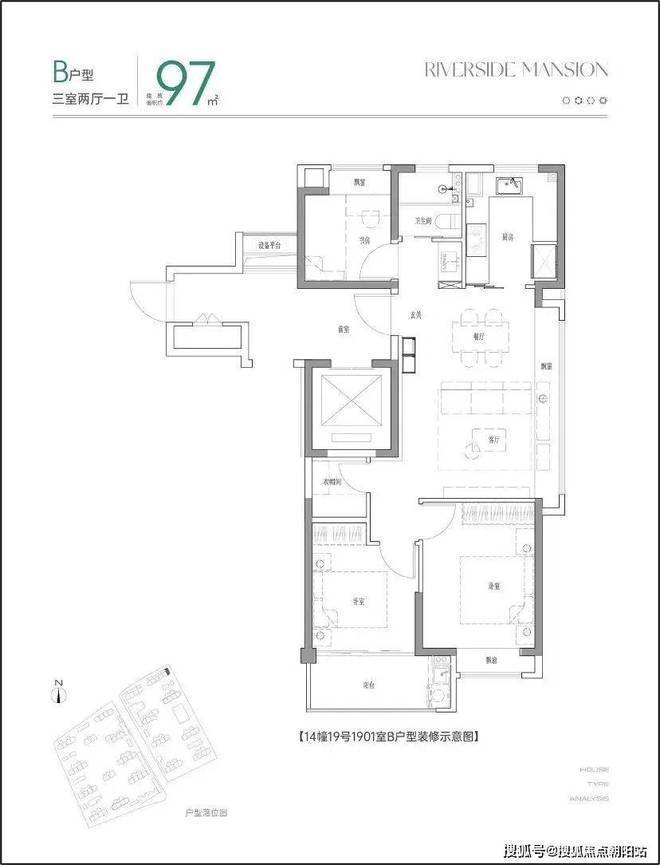
「约97㎡ 3房2厅1卫」
「约90㎡ 3房2厅1卫」
「约123㎡ 3房2厅2卫」
「约100㎡ 3房2厅2卫」
国际一线精装品牌:
项目全屋三大件配齐:东芝(或同等品牌)中央空调、威能(或同等品牌)地暖、松下(或同等品牌)新风。
样板间实景图
中国铁建花语前湾厨房配有方太三件套(或同等品牌)油烟机+燃气灶+12套嵌入式洗碗机。
样板间实景图
卫生间使用杜拉维特(或同等品牌)整体智能马桶、汉斯格雅(或同等品牌)花洒+龙头。
样板间实景图
居家细节方面:
项目全屋配备入户玄关柜,内部活动板可调,鞋柜自带鞋柜精灵。
厨房配备前端净水器、凉霸。在水槽下方还贴心设计檐口翻板收纳和拉篮。
样板间实景图
中国铁建花语前湾全屋墙布交付,甚至连局部免漆木饰面格栅+仿大理石岩板也是交付标准,诚意之高见微知著。
在卫生间,主卧镜柜内置美妆冰箱,方便女主人储物各种面膜,化妆品等物件。客卫镜柜内置插座,可以给电动牙刷、剃须刀充电,吹头发也不用扯长长的电线。
高规格居家从每一处体现得淋漓尽致。
样板间实景图
03
买房买央企,这句话不论放在哪个时代、哪个阶段都不会错。
中国铁建地产,秉持“美好生活建造者”的品牌理念,匠心沉淀,精研人居,进入上海之后扎根热土,连续打造现象级红盘,正是品牌与品质的双重加持,让其好评如潮。售楼处电话:400 9939 116听到提示音后再拨分机号905【售楼中心】
如今的中国铁建·花语前湾,作为品牌落子上海主城的人居著作,将约23万方新江南国际住区敬献上海,属实是诚意满满。
而且这个项目是中国铁建地产的标杆产品系——花语系,“花语系”于苏州、南京、嘉兴、绍兴等城市打造引领行业的经典案例;中国铁建·花语江南、中国铁建·花语天境等花语系作品作为华东公司最闪亮的产品名片,目前已完成22个项目的落地。
中国铁建·花语前湾,立足购房者居住体验,从景观到户型、精装每一项都精心研磨,极力营造高净值人群偏爱的生活方式,带来同级标杆产品力。
04
好的产品,连一棵草都来自开发商的甄选。中国铁建·花语前湾亦如此。
约23万方土地,中国铁建·花语前湾在秉承地域文化特色的基础上,以一轴三带四园,打造现代东方风格的写意景观,让家园温度可感可视化的同时,也让项目贴合前湾“东潮西溯”特征。
中国铁建·花语前湾效果图
两块地块中间设有260米长邻里生活街区,约4000㎡沿街配套,打造为集生态、景观、时尚、社交的休闲聚场,构建都市活力的便捷生活。
中国铁建·花语前湾效果图
此外,花语前湾规划的公共空间配套、架空层的设计,营造社区和睦、邻里共建的新型城市人际,多重功能分区更为业主提供便利的生活,满足全生命周期所需:约360㎡养育托管点、卫生服务站、多功能运动场等;还有约1000㎡社区学校平方米、工疗、康体服务中心、社区长者食堂等, 从运动、健康、教育多长角度丰富日常。
中国铁建·花语前湾效果图
在繁华都市之中,如果能够享受一片宁静而安逸的江南园林,园区之中打造约800㎡阳光草坪、三大中心花园,归家漫步进入另一重时空之中,让心灵得以沉淀,更是现代生活难得的意境和体验。
中国铁建·花语前湾效果图
05
周边配套售楼处电话:400 9939 116听到提示音后再拨分机号905【售楼中心】
中国铁建花语前湾位于炙热的闵行前湾地区。
上海2035,虹桥划入主城,成为新的城市副中心,定位为全球城市功能主要承载区。其中约30k㎡的前湾地区将重点打造,成为面向国际国内的世界级“会客厅”。
前湾的定位为:“长三角总部经济首选地、国家产城融合示范标杆和绿色开放共享的国际主城”。是虹桥国际开放枢纽城市功能的核心承载区,是虹桥“十四五”发展的新中心。“十四五”期间,前湾地区将集中开发建设北青公路以北10平方公里,商业商办约200万平方米,研发约200万平方米,总开发规模约3000万㎡。
闵行华漕南山项目位于前湾规划的核心区域,是整个前湾地区配套规格更高、环境更好、交通更便捷、品质住宅&优质教育更集中的区域。项目周边规划了约100万方前湾公园,对标世纪公园,打造“翡翠绿廊”。
①垂直交通系统,突出TOD功能复合和公共属性芳乐路站TOD开发将围绕交通休闲、办公娱乐等进行全方位覆盖,它强调的是多功能的立体复合,使用者的丰富体验。依托芳乐路站3线换乘的交通区位优势,采用地上地下一体化开发,结合了轨道交通站点,建立一个高效安全的步行系统,并于周边形成前区广场。
芳乐站点周边
②百米绿带滨水空间,打造城绿相融的空间格局除了交通优势,在芳乐路北侧打造百米绿带滨水空间,作为生态之脉串联芳乐路地铁站和朱建路地铁站,为市民提供休闲的生态场所。紧依芳乐路TOD而建的前湾公园,公园与周边城市功能无界融合,充分构筑前湾地区“五分水绿五分城”的生态格局。
五分水绿五分城售楼处电话:400 9939 116听到提示音后再拨分机号905【售楼中心】
③多样化的居住环境,形成职住一体的产城单元发挥芳乐路TOD门户效应,嵌入产业门户的展示交流功能,在功能复合的场所中培育创新激发产业活力,促进城市新价值的诞生,同时辐射周边区域。
芳乐路站周边已有开市客、前湾印象城(在建中)等多个高端商业体。前湾印象城MEGA,总投资约30亿,规划了约14万㎡的购物空间、约1.4万㎡的办公以及超10万㎡的配套车库,目前正在开工建设,这将是上海第二家“印象城MEGA”。
前湾印象城MEGA效果图售楼处电话:400 9939 116听到提示音后再拨分机号905【售楼中心】
前湾地区拥有强劲公立教育配套,3.0版基础教育实验园区:华东师范大学基础教育实验园区,包括7所学校。芳乐路站周边就有华东师范大学新虹桥实验幼儿园(公办,南北两园)、华东师范大学新虹桥实验小学、华东师范大学新虹桥实验初中,华东师范大学知序实验幼儿园(民办)。
售楼处电话:400 9939 116听到提示音后再拨分机号905【售楼中心】(温馨提示:本项目参观样板间采取预约制,为了不耽误您的行程,过来参观请提前来电进行预约看房或咨询项目详情)“十四五”期间,北部创新研发产业片区启动建设,中部电竞文创产业片区基本建成,南部健康医疗产业片区基本建成。2019年10月,国际新文创电竞中心已落户华漕,助推上海建设全球电竞之都。
更何况,芳乐路站东侧是前湾中央活动区,南侧还有上海新虹桥国际医学中心。前湾地区重点打造2平方公里以总部商务功能为核心的中央活动区,这里将建设标志性高层建筑群,据悉,将以260米的地标建筑云霄塔为核心。(规划来源:《虹桥国际开放枢纽建设总体方案》、《上海市虹桥主城片区单元规划》,发布时间2021年2月)
☎☎☎优惠预约热线请先拨打400 9939 116听到提示音后再拨分机号905转接【售楼中心】
——线上售楼中心—— 可来电预约班车免费接送!
售楼经理:172-7465-7076【微信同号】 微信添加请备注楼盘名称和需求享优惠
1、本资料为邀约邀请,不作为最终交付标准或承诺;买卖双方的权利义务以双方签订的《商品房买卖合同》及其补充协议、附件等书面文件为准;
2、相关宣传内容不排除因政府相关规划、规定及出卖人分期规划、未能控制等原因发生变化;出卖人将不定期对宣传材料进行修改,敬请留意最新资料
声明:本文由入驻焦点开放平台的作者撰写,除焦点官方账号外,观点仅代表作者本人,不代表焦点立场。
