九龙长沙湾「香港晓柏峰 THE PADDINGTON新盘简介」周边配套+楼盘详情【全面解析】
扫描到手机,新闻随时看
扫一扫,用手机看文章
更加方便分享给朋友
九龙长沙湾「晓柏峰 THE PADDINGTON」新盘简介
※九龙市区步行生活圈※15分钟贯通港岛九龙※
预约热线:先拨打400 9939 116听到提示音后再拨分机号905【预约优惠】
微信联系:172 7465 7076 加微信请备注:【晓柏峰 THE PADDINGTON】预约优惠
物业地址:长沙湾西洋菜北街456号
发展商:恒基
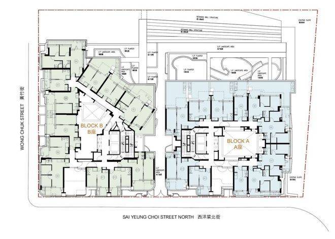
物业单位:2座共计492伙
层数: 分别楼高23及22层
楼高:3.05至4米
户型分布:实用面积介乎162至616平方呎,普遍采用开放式厨房设计,只有少数设独立式厨房(梗厨),大部份单位配置露台及工作平台。户型包括开放式至三房,当中包括开放式、1房1厅、2房1厅、3房2厅(连套房)四种。而单位供应以一房户为主。
标准户共有457伙,分布于各座3至25楼,实用面积为185至499平方呎,间隔涵盖开放式至三房,户户配置22平方呎露台及16平方呎工作平台。标准户供应以一房户最多,共有288伙;其次为两房户,设113伙,当中包括38伙两房连衣帽间、75伙标准两房户。至于开放式户及三房户分别各占38伙及18伙。
连平台户共设23伙,位于各座2楼,实用面积由162至460平方呎,各配置22至309平方呎平台。
连天台户只有6伙,位于B座25楼B3至B8室,实用面积介乎240至365平方呎,各配置110至232平方呎天台、22平方呎露台及16平方呎工作平台。要留意所有连天台户需使用公共楼梯上落天台。
顶层特色户仅设6伙,位于A座26楼A1至A4室、B座25楼B1至B2室,实用面积为539至616平方呎,各配置154至326平方呎平台、202至692平方呎天台。户户内置楼梯上落天台。
配套设施方面,屋苑于1楼设有5,578平方呎两层住客会所及9,580平方呎园林区/绿化地带,提供包括料理工作室、私人剧院、青莲雅座、中庭庄园、宠物公园、烧烤乐园、山泉瀑布等约20项设施。项目以澳洲SUBURB LIFESTYLE作设计蓝本,以自然绿化为设计主调,引进大量绿化及天然石材,透过不同材质、纹理和设计轮廓创造出一个现代、鼓舞人心和轻松的环境。
景观方面,预料项目向东单位享有翠绿石硖尾山翠绿林景;向西中低层单位则以望周边旧楼景为主。
交通方面,楼盘位处港铁石硖尾站及深水埗站之间,步行至任何一站需时约7至9分钟。同时于大埔道、南昌街及长沙湾道沿线有多条巴士及小巴路线,穿梭港九新界多个地方。
生活配套方面,在大埔道一带则座落多间商铺及超级市场,同时石硖尾及深水埗区内民生商店及食肆林立;邮局、银行、熟食中心及街市均一应俱全。步行至黄金、高登等计算机商场亦仅十数分钟。
小区康乐设施方面,项目附近有大坑东游乐场、界限街二号体育馆及枫树街游乐场等设施;而区内另有北河街体育馆、通州街公园等供公众使用。
校网:小学校网为40,其中有圣公会圣纪文小学、荔枝角天主教小学以及圣玛加利男女英文中小学等。中学校网是深水埗区,包括官立嘉道理爵士中学(西九龙)、英华书院和宝血会上智英文书院等。
预计关键日期 : 现楼
住宅在售价格:港币423万起(只供内部参考,以发展商公布的最新价单为准)
※部分以招标形式出售的单位没有公布价格
项目标准示范单位,参照B座22楼B1室,为两房间隔,实用面积411方呎,并设22方呎露台及16方呎工作平台
※九龙市区步行生活圈※15分钟贯通港岛九龙※
预约热线:先拨打400 9939 116听到提示音后再拨分机号905【预约优惠】
微信联系:172 7465 7076 加微信请备注:【晓柏峰 THE PADDINGTON】预约优惠
声明:本文由入驻焦点开放平台的作者撰写,除焦点官方账号外,观点仅代表作者本人,不代表焦点立场。
