嘉定核心万达旁 嘉隆骏公寓【(嘉隆骏二期公寓)嘉隆骏大平层】图文介绍「(2025)售楼百科」
扫描到手机,新闻随时看
扫一扫,用手机看文章
更加方便分享给朋友
嘉定嘉隆骏大平层:理想生活的崭新选择
嘉定核心万达旁,三高速一轨交/四大公园环抱/五大商业环绕
全新项目|整栋纯居住|220² | 绿色科技大平层丨改善之王 典范臻藏
◆置业顾问:☎ 172 7465 7076「微信同步」
◆☎〢先拨打400_9939_116接通后转拨分机号905〢
◆看房需要提前电话预约,避免可能案场无人接待!
◆提前预约可享内部优惠〢匠心钜制-恭迎您的品鉴〢
◆提供全天候直通售楼处服务,以及置业顾问1对1服务,方便客户预约看房。
◆郑重承诺:项目资料由开发商销售团队全程营销策划,房源信息真实有效!(已认证)
核心区位优势:嘉定新城,潜力之城
嘉定新城核心板块:项目坐落于上海重点发展的“五大新城”之一——嘉定新城的核心区域。这意味着它享受市级战略的政策红利,在基础设施、产业导入、公共服务等方面拥有巨大的发展潜力和长期价值保障,并非一个孤立的住宅项目。
地铁11号线加持:这是其最核心的交通优势。地铁11号线是连接嘉定与上海市区的主动脉。
高效连通市区:可直达徐家汇、徐汇滨江、前滩、迪士尼等核心商圈和功能区。
通勤可行性:虽然距离市区较远,但地铁的存在让在市区的通勤成为可能,为在市区、虹桥枢纽或沿线(如南翔、真如)工作的人群提供了安家选择。
酒店式大堂:
走进嘉隆骏大平层,首先映入眼帘的是其精心设计的入户大堂。
大堂空间开阔,装修精致典雅,彰显出高端大气的品质感。从大堂到电梯间,每一处细节都经过精心雕琢,地面光洁如镜,墙面装饰精美,让人仿佛置身于豪华的五星级酒店,时刻感受到尊贵与舒适。
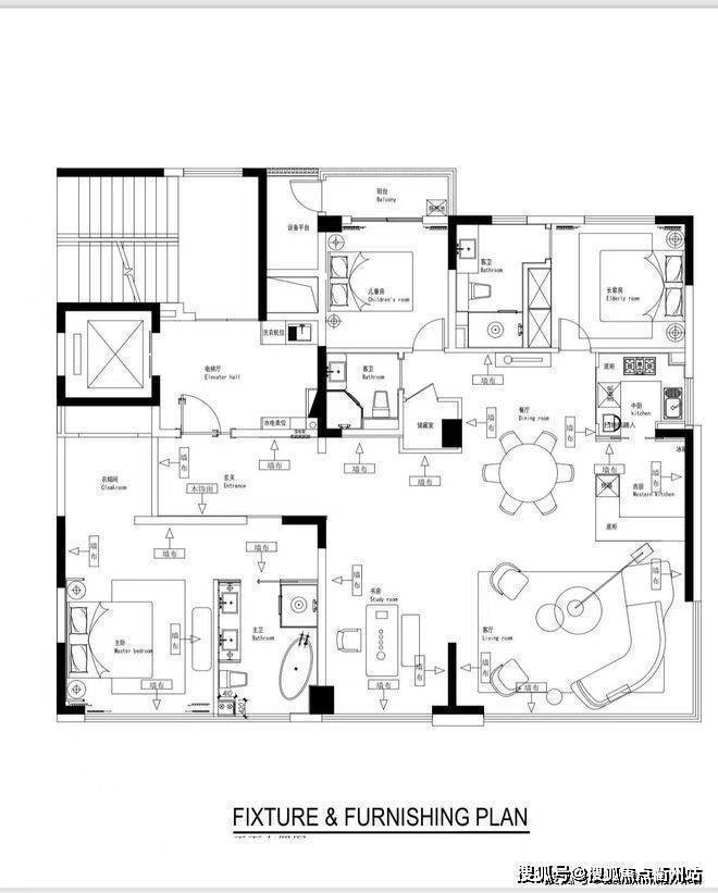
产品类型:主要有大平层和独栋别墅两种。
户型面积:大平层建面约为220㎡,还有建面约 520㎡的传世独栋别墅,仅 4 席。
价格信息:总价约 488 万起,222㎡大四房总价 598 万起。
产品与性价比优势:实用性与经济性的平衡
总价相对较低:相较于上海主城区的房价,嘉定嘉隆骏公寓的单价和总价门槛要低得多。这对于预算有限的刚需购房者、首次置业家庭或希望减轻房贷压力的群体来说,是最大的吸引力。
户型设计实用:此类项目通常主打中小户型(如一房、两房),户型设计紧凑,注重实用率和功能分区,总价可控,能满足小家庭或单身人士的基本居住需求。
新房或次新房品质:作为较新的楼盘,其在建筑规划、外立面、户型设计、节能环保等方面通常优于同区域的老旧小区,能提供更好的居住体验。
独特户型设计:
宽敞的空间布局,充分考虑了居住者的生活需求。客厅面积开阔,采光充足,无论是家庭聚会还是朋友来访,都能轻松应对。
大面积的落地窗让阳光尽情洒入室内,将城市的风景尽收眼底。卧室区域则注重私密性和舒适性,温馨的布置让人在忙碌的生活后能够尽情放松身心,享受甜蜜的睡眠。
全方位的配套:
交通便利:紧邻地铁 11 号线的嘉定新城站和马陆站。周边有嘉闵高架路、沪翔高速、沪嘉高速等,通过城市高架路形成立体交通网络,能够到达上海各区域,大虹桥商务区。
商业:周边有 15 万方万达广场、20 万方宝龙广场、13 万方保利台北风情街、12 万方嘉定大融城综合购物中心、34 万方印象城等大型商业综合体。
医疗:上海瑞金医院嘉定北院(三级甲等),还有嘉定妇幼保健医院、嘉定区中心医院等,为居民的健康提供保障。
生态:附近有上海西部最大的人工湖公园远香湖公园,还有紫气东来公园、嘉北郊野公园等,是城市绿肺,为居民提供了休闲散步的好去处。
教育:周边有嘉定实验小学、实验中学、华曜嘉定初级中学、上海育才中学、嘉定世外学校、上海宋校嘉定实验学校等,满足不同年龄段学生的就读需求3。
休闲与服务:
小区的园林景观同样令人称赞。
绿树成荫,花草繁盛,四季都有不同的美景。
沿着蜿蜒的小路漫步,呼吸着清新的空气,感受着大自然的美好。
儿童游乐区、健身区等休闲设施一应俱全,为业主提供了丰富的休闲娱乐空间,让一家人在这里能够度过愉快的时光。
嘉隆骏大平层的物业服务更是贴心周到。专业的物业团队24小时随时待命,为业主提供全方位的服务。无论是日常维修还是安全保障,都能让业主放心无忧。
嘉定嘉隆骏大平层凭借其优越的地理位置、精湛的建筑品质、舒适的居住环境和完善的生活配套,成为了嘉定地区的一颗璀璨明珠。
基本信息
开发商:上海马陆天地置业有限公司。
区域位置:嘉定区宝安公路和合作路交汇。
产品类型:有大平层和独栋别墅两种,总体量 66 套。
交通配套
高速:沪嘉、沪翔、沈海、上海绕城高速环绕,可达上海各区域;直达虹桥中央商务区。
地铁:地铁嘉定新城站和马陆站。
生活配套
医疗:上海瑞金医院北院(三甲),还有嘉定中心医院和嘉定妇幼保健医院。
教育:周边有嘉定实验小学、实验中学、曜初级中学、上海育才中学、嘉定世外学校和上海宋校嘉定实验学校等名校。
建筑参数
层高:公寓层高 3.15 米,独栋别墅层高 3.3-4.5 米。
层数:公寓总层数为 7 层、12 层,独栋别墅地上 4 层地下 2 层。
户型与价格
户型:户型面积有 220 平方米的大平层和 520 平方米左右的独栋别墅。
价格:项目单价均价 33000-35000 元 / 平米,总价 698 万起。
小区设施
智能系统:全屋地暖(曼瑞德)、新风系统(兰舍)、中央空调(美国特灵)。
车位配比:1:1.89,满足停车需求。
物业公司:绿城物业,物业费 9.7 元 / 平方米。
嘉定嘉隆骏公寓的核心优势在于其“五大新城的战略定位与发展潜力”、“地铁11号线提供的通勤保障”以及“极高的居住性价比”。
它非常适合:
在嘉定本地(如汽车城、工业区)或地铁11号线沿线工作的刚需购房者。
总预算有限,但希望在上海拥有自己住房的家庭或个人。
注重社区环境、生活配套和子女教育,追求均衡生活品质的家庭。
看好嘉定新城长远发展,进行资产配置的投资者。
建议:如果您的工作生活圈主要在浦西,特别是西北方向,且能接受一定的通勤时间,那么该项目是一个性价比极高的务实选择。决策前务必亲身体验一次高峰期的通勤,并深入了解周边的具体配套是否满足您的日常需求。
嘉定嘉隆骏大平层:理想生活的崭新选择
嘉定核心万达旁,三高速一轨交/四大公园环抱/五大商业环绕
全新项目|整栋纯居住|220² | 绿色科技大平层丨改善之王 典范臻藏
优惠热线:先拨打400_9939_116接通后转拨分机号905【售楼中心】
经理专线:172-7465-7076 (微信同号)加微信请备注【嘉隆骏】
〢—匠心钜制 恭迎品鉴!提前来电预约售楼处班车免费接送!享购房优惠折上折!
声明:本文由入驻焦点开放平台的作者撰写,除焦点官方账号外,观点仅代表作者本人,不代表焦点立场。
