【嘉隆骏二期户型图】上海嘉定嘉隆骏在售信息_价格_怎么样?
扫描到手机,新闻随时看
扫一扫,用手机看文章
更加方便分享给朋友
地理位置优越:
在嘉定这片充满活力与机遇的土地上,嘉隆骏大平层以其独特的魅力和卓越的品质,成为了众多购房者瞩目的焦点。
嘉隆骏大平层坐落于嘉定的核心区域,交通优势十分显著。
周边多条城市主干道纵横交错,无论是驾车出行还是乘坐公共交通,都能轻松畅达城市的各个角落。
多条公交线路贯穿其中,地铁站也在附近,大大缩短了与城市其他区域的时空距离,让生活更加便捷高效。
酒店式大堂:
走进嘉隆骏大平层,首先映入眼帘的是其精心设计的入户大堂。
大堂空间开阔,装修精致典雅,彰显出高端大气的品质感。从大堂到电梯间,每一处细节都经过精心雕琢,地面光洁如镜,墙面装饰精美,让人仿佛置身于豪华的五星级酒店,时刻感受到尊贵与舒适。
产品类型:主要有大平层和独栋别墅两种。
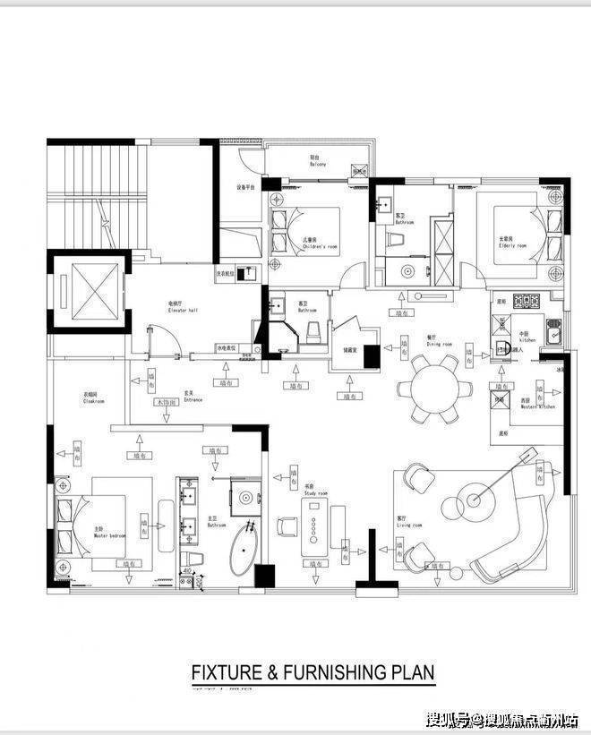
户型面积:大平层建面约为220㎡,还有建面约 520㎡的传世独栋别墅,仅 4 席。
价格信息:总价约 488 万起,222㎡大四房总价 598 万起。
独特户型设计:
宽敞的空间布局,充分考虑了居住者的生活需求。客厅面积开阔,采光充足,无论是家庭聚会还是朋友来访,都能轻松应对。
大面积的落地窗让阳光尽情洒入室内,将城市的风景尽收眼底。卧室区域则注重私密性和舒适性,温馨的布置让人在忙碌的生活后能够尽情放松身心,享受甜蜜的睡眠。
全方位的配套:
交通便利:紧邻地铁 11 号线的嘉定新城站和马陆站。周边有嘉闵高架路、沪翔高速、沪嘉高速等,通过城市高架路形成立体交通网络,能够到达上海各区域,大虹桥商务区。
商业:周边有 15 万方万达广场、20 万方宝龙广场、13 万方保利台北风情街、12 万方嘉定大融城综合购物中心、34 万方印象城等大型商业综合体。
医疗:上海瑞金医院嘉定北院(三级甲等),还有嘉定妇幼保健医院、嘉定区中心医院等,为居民的健康提供保障。
生态:附近有上海西部最大的人工湖公园远香湖公园,还有紫气东来公园、嘉北郊野公园等,是城市绿肺,为居民提供了休闲散步的好去处。
教育:周边有嘉定实验小学、实验中学、华曜嘉定初级中学、上海育才中学、嘉定世外学校、上海宋校嘉定实验学校等,满足不同年龄段学生的就读需求3。
休闲与服务:
小区的园林景观同样令人称赞。
绿树成荫,花草繁盛,四季都有不同的美景。
沿着蜿蜒的小路漫步,呼吸着清新的空气,感受着大自然的美好。
儿童游乐区、健身区等休闲设施一应俱全,为业主提供了丰富的休闲娱乐空间,让一家人在这里能够度过愉快的时光。
嘉隆骏大平层的物业服务更是贴心周到。专业的物业团队24小时随时待命,为业主提供全方位的服务。无论是日常维修还是安全保障,都能让业主放心无忧。
嘉定嘉隆骏大平层凭借其优越的地理位置、精湛的建筑品质、舒适的居住环境和完善的生活配套,成为了嘉定地区的一颗璀璨明珠。
基本信息
开发商:上海马陆天地置业有限公司。
区域位置:嘉定区宝安公路和合作路交汇。
产品类型:有大平层和独栋别墅两种,总体量 66 套。
交通配套
高速:沪嘉、沪翔、沈海、上海绕城高速环绕,可达上海各区域;直达虹桥中央商务区。
地铁:地铁嘉定新城站和马陆站。
生活配套
医疗:上海瑞金医院北院(三甲),还有嘉定中心医院和嘉定妇幼保健医院。
教育:周边有嘉定实验小学、实验中学、曜初级中学、上海育才中学、嘉定世外学校和上海宋校嘉定实验学校等名校。
建筑参数
层高:公寓层高 3.15 米,独栋别墅层高 3.3-4.5 米。
层数:公寓总层数为 7 层、12 层,独栋别墅地上 4 层地下 2 层。
户型与价格
户型:户型面积有 220 平方米的大平层和 520 平方米左右的独栋别墅。
价格:项目单价均价 33000-35000 元 / 平米,总价 598 万起。
小区设施
智能系统:全屋地暖(曼瑞德)、新风系统(兰舍)、中央空调(美国特灵)。
车位配比:1:1.89,满足停车需求。
物业公司:绿城物业,物业费 9.7 元 / 平方米。
声明:本文由入驻焦点开放平台的作者撰写,除焦点官方账号外,观点仅代表作者本人,不代表焦点立场。
