【澜庭壹号院】 (2025澜庭壹号院最新发布)_户型图_容积率_小区配套_楼盘地址
扫描到手机,新闻随时看
扫一扫,用手机看文章
更加方便分享给朋友
独家!狮山红盘「澜庭壹号院」户型曝光!洋房+叠墅+合院,最大370㎡
刚刚!
狮山热门楼盘澜庭壹号院户型曝光
洋房:135㎡
叠墅:218㎡,236㎡,258㎡
合院:270㎡,325㎡,370平㎡
售楼处电话:拨打400 9939 116 再拨分机号900【已认证】
——线上售楼中心—— 看房参观请提前预约,谢谢配合!
微信联系:134 0209 6359【微信同号】 微信添加请备注:澜庭壹号院
01
壹号院系首入苏州,狮山再添封面之作
作为绿城旗下最高端的产品序列,壹号院系此前仅布局全球核心城市,每一座作品都代表着绿城对城市价值的最高礼赞。此次狮山项目以“澜庭壹号院”命名,既延续了苏高新“澜”系在苏州市场的口碑积淀,又注入了绿城壹号院系的国际视野。
澜庭壹号院所在地块(苏地2024-WG-Z31号)于2024年11月28日由绿城管理与苏高新集团联合竞得,成交总价10.95亿元,楼面价25115元/㎡,溢价率0.46%。在土地资源稀缺的狮山板块,这幅容积率仅1.2的住宅用地堪称“绝版珍藏”。
02
根据最新规划公示,澜庭壹号院总用地面积约3.6万平方米,总建筑面积7.9万平方米,由21栋建筑组成。
#2栋10层精装洋房(约100套,建面135㎡)
#2栋6层叠墅(约36套,建面约218㎡、236㎡、258㎡,下叠带庭院)
#17栋3层联排(约69套,建面约270㎡、325㎡、370㎡,预计最大庭院超300㎡)
澜庭壹号院整体仅规划约205户,是狮山罕见的纯粹低密社区。小道消息称项目建筑设计延续绿城“逸庐系”的现代东方美学,由曾操刀上海融创滨江壹号院的GOA大象设计主笔,屋顶采用中式坡顶设计,与狮山逸庐一脉相承。
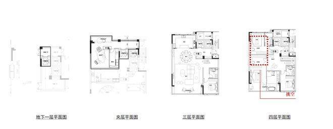
03
户型分布
洋房135平(四房两厅两卫)
叠墅:下叠:218㎡
中叠:236㎡
上叠:258㎡
合院
04
澜庭壹号院位于狮山商务创新区核心区位,坐拥立体交通网络
双地铁环绕:5号线石城站,1号线汾湖路站;主干道环伺:紧邻长江路、竹园路,快速连接中环西线、苏福快速路;商业配套:狮山CBD,共享龙湖天街、金鹰国际等繁华商业。
售楼处电话:拨打400 9939 116 再拨分机号900【已认证】
——线上售楼中心—— 看房参观请提前预约,谢谢配合!
微信联系:134 0209 6359【微信同号】 微信添加请备注:澜庭壹号院
以上内容仅供参考,实际以售楼处销售为准。(免责声明:本篇分享所涉及的图文资料仅供参考,具体以最终签订的买卖合同为准,部分图片素材来自网络,如有侵权请联系小编删除,感谢支持)
声明:本文由入驻焦点开放平台的作者撰写,除焦点官方账号外,观点仅代表作者本人,不代表焦点立场。
