【上海浦东花木御翠园】【ALACER·御翠-御翠园】【花木御翠园】70年产权商铺

衢州楼市 2023-06-13 16:49:26
用手机看
扫描到手机,新闻随时看

扫一扫,用手机看文章
更加方便分享给朋友

☎☎☎优惠预约热线:先拨打400 9939 116听到提示音后再拨分机号901【售楼中心】 ◆◆——网上售楼中心—— 来电预约班车免费接送! ★★客户经理:185-1658-9399(微信同号)加微信请备注楼盘名称:【花木御翠园】预约最新优惠

上海浦东70年产权社区铺【ALACER·御翠-御翠园】【花木御翠园】-售楼处电话

☎☎☎优惠预约热线:先拨打400 9939 116听到提示音后再拨分机号901【售楼中心】

◆◆——网上售楼中心—— 来电预约班车免费接送!

★★客户经理:185-1658-9399(微信同号)加微信请备注楼盘名称:【花木御翠园】预约最新优惠

ALACER·御翠

★★客户经理:185-1658-9399(微信同号)加微信请备注楼盘名称:【花木御翠园】预约最新优惠

城市会客厅 重餐饮 九大豪宅集群 70年社区商业

基本信息

★★客户经理:185-1658-9399(微信同号)加微信请备注楼盘名称:【花木御翠园】预约最新优惠

1、产权期限:70年产权,至2068年

2、项目位置:浦东新区花木路1707号,南临花木路主干道,西临御翠园高端社区主入口

3、楼层&面积:地上2层商业面积2555㎡,及地下1层商业及独享车位面积近4000㎡

4、层高:1层约4.5米,2层4.5-6.5米

5、商铺:105㎡-170㎡(可多样化组合选项)

6、总价:1050万起(自由灵活选铺)

7、得房率:高于同类竞品商业得房率

8、外摆:1层提供超大外摆空间,2层提供视野广阔的露台空间

9、交付标准:空调、排烟、厨房上下水、卫生间上下水(部分商铺),楼板承重200KG/㎡

10、电梯&楼梯:2部直梯,3个宽楼梯

11、物业:绿城服务提供高标准金牌管家式服务

项目区位

★★客户经理:185-1658-9399(微信同号)加微信请备注楼盘名称:【花木御翠园】预约最新优惠

周边住宅

商业位于上海最成熟的城市副中心——花木国际社区,周边9大豪宅区林立,近万户鼎豪环绕,住宅均价25-30万,总价3000万-5亿,板块汇集了顶级消费人群。

周边办公及展览

★★客户经理:185-1658-9399(微信同号)加微信请备注楼盘名称:【花木御翠园】预约最新优惠

①隔壁嘉里城、紫竹国际,汇集国金证券、兴全基金、今日资本、景林资产、达能中国、劳斯劳斯中国等外资、科技、基金公司,可为本商业带来工作日持续的高消费力。

②隔壁博览中心,每年上千万人次的展会经济,带来巨大人流,让本商业具备超人气潜质。

周边环境

★★客户经理:185-1658-9399(微信同号)加微信请备注楼盘名称:【花木御翠园】预约最新优惠

世纪公园是浦东之肺,天然氧吧,是集跑步、骑行、露营等多种流行形态的运动圣地。

交通抵达

罗山路高架、龙东高架、内环线等多条主干道环绕,7号地铁线5号口步行300米可达。

外部导流

★★客户经理:185-1658-9399(微信同号)加微信请备注楼盘名称:【花木御翠园】预约最新优惠

本商业位于御翠园别墅区主出入口,是小区人流车流的必经之地,东面街铺亦可将人流导向本商业。

商场外摆

花岗岩铺设外摆,20-120平米不等,大大增加实用面积。午后时光在户外享受一份美味的下午茶,配上怡人的花艺布景,拍上一张美照,也别有一番趣味。

一楼

1、中庭

公区整体采取简约风,几何线条感拉满,棕褐色木纹装饰的艺术画廊式中庭搭配以典雅厚重的酒红色铝板,给人一种精致、舒适而恰到好处的美感。

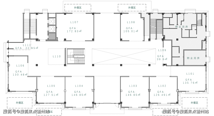
一楼平面图及业态规划(主打精致社交休闲:中古奢侈品、户外运动零售、鲜花、美容美发、休闲餐饮、咖啡烘焙……)

★★客户经理:185-1658-9399(微信同号)加微信请备注楼盘名称:【花木御翠园】预约最新优惠

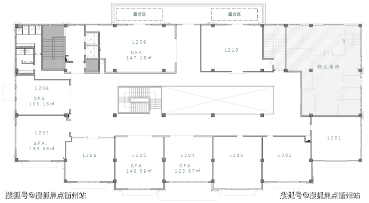
二层商铺挑高6.5米,得房率高,均有大面积落地窗和对外展示面,提供足够的通透感,可打造立体营业空间。

★★客户经理:185-1658-9399(微信同号)加微信请备注楼盘名称:【花木御翠园】预约最新优惠

★★客户经理:185-1658-9399(微信同号)加微信请备注楼盘名称:【花木御翠园】预约最新优惠

2、露台

可俯瞰御翠园,远眺陆家嘴,绝美视角,出片率爆棚。

二楼平面图及业态规划(主打高端品质生活:品质餐饮、高端酒吧、私宴会客、私教运动、SPA……)

★★客户经理:185-1658-9399(微信同号)加微信请备注楼盘名称:【花木御翠园】预约最新优惠

★★客户经理:185-1658-9399(微信同号)加微信请备注楼盘名称:【花木御翠园】预约最新优惠

★★客户经理:185-1658-9399(微信同号)加微信请备注楼盘名称:【花木御翠园】预约最新优惠

★★客户经理:185-1658-9399(微信同号)加微信请备注楼盘名称:【花木御翠园】预约最新优惠

☎☎☎优惠预约热线:先拨打400 9939 116听到提示音后再拨分机号901【售楼中心】

◆◆——网上售楼中心—— 来电预约班车免费接送!

★★客户经理:185-1658-9399(微信同号)加微信请备注楼盘名称:【花木御翠园】预约最新优惠

声明:本文由入驻焦点开放平台的作者撰写,除焦点官方账号外,观点仅代表作者本人,不代表焦点立场。