上海市奉贤区奉城镇佳源·名人公馆尚优玛特超市和桌球俱乐部商铺特价出售
扫描到手机,新闻随时看
扫一扫,用手机看文章
更加方便分享给朋友
奉贤奉城 佳源·名人公馆——尚优玛特购物广场(奉城店)——超市+台球厅商铺出售-2590㎡,总价2280万
上海市奉贤区奉城镇兰博路3069弄佳源·名人公馆
单价8800/m²沿街大转角整体出售🔥🔥🔥
★★预约热线:先拨打400 9939 116听到提示音后再拨分机号900【预约看房】
客服经理:134-0209-6359(微信同号)加微信请备注楼盘名称:【奉贤尚优玛特商铺】
预约看房——欢迎来电咨询〢——预约看房错峰接待,谢谢配合!
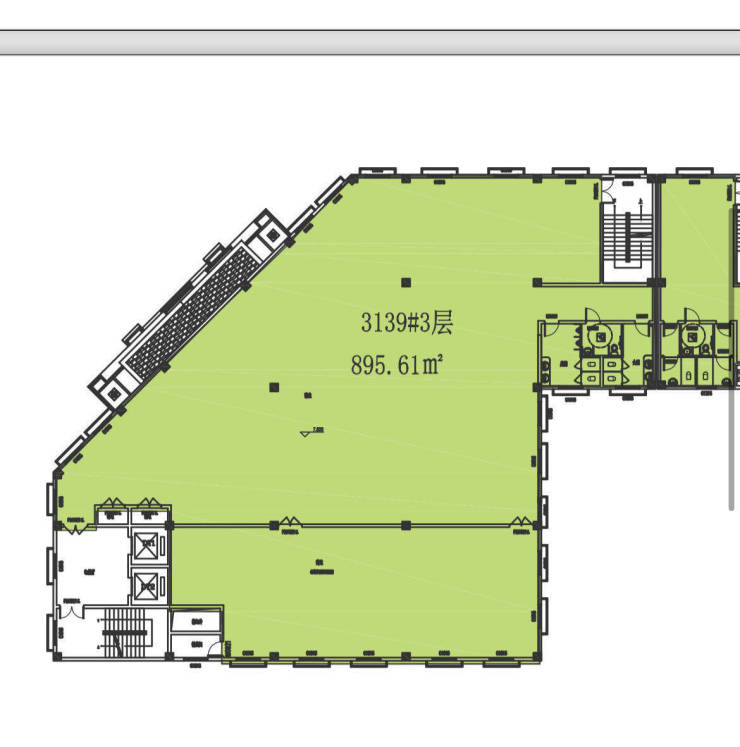
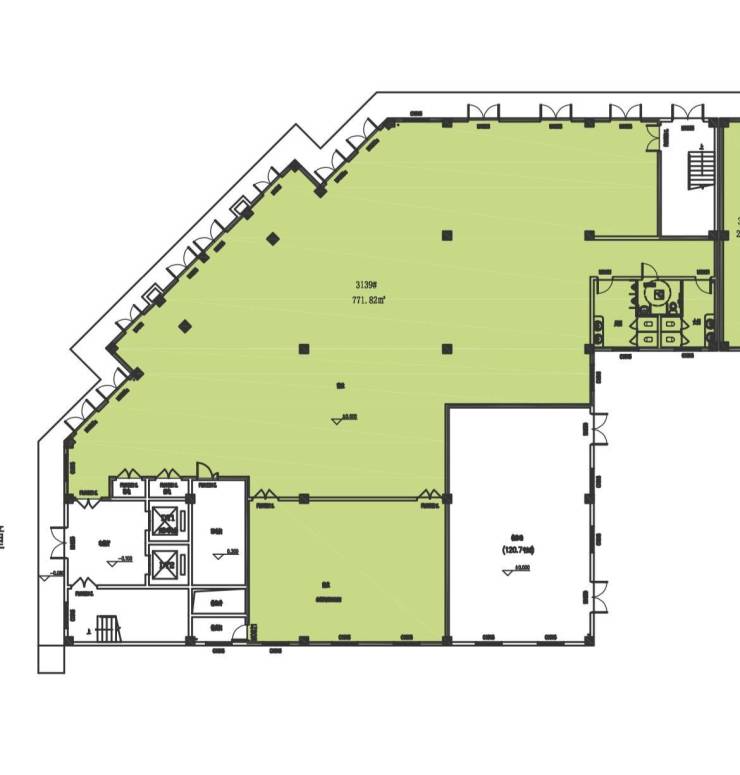
面积:2590m² (一层772m² 二层922m²三层895m²)
原价:3100万
一口价:2280万
层高:一楼4.2米 二楼3.3米 三楼3.3米
卖点
1.11开间 超30米大展示面
2.商家稳定 带租约出售
3.95%以上超高得房率 户型方正
4.路口大转角 自带停车位
5.通燃气可做重餐饮
6.500米内超5000户固定小区人口
7.品牌商家 租金可查
8.商家已经营8年以上 25年重新装修 租约稳定
租金计算方式:
超市租金表(下方表格扣除109.79m²不计算租金)
台球厅租金表
1-2层商家实景照片
3层商家实景照片
奉贤奉城 佳源·名人公馆——尚优玛特购物广场(奉城店)——超市+台球厅商铺出售-2590㎡,总价2280万
上海市奉贤区奉城镇兰博路3069弄佳源·名人公馆
单价8800/m²沿街大转角整体出售🔥🔥🔥
★★预约热线:先拨打400 9939 116听到提示音后再拨分机号900【预约看房】
客服经理:134-0209-6359(微信同号)加微信请备注楼盘名称:【奉贤尚优玛特商铺】
预约看房——欢迎来电咨询〢——预约看房错峰接待,谢谢配合!
以上内容仅供参考,实际以售楼处销售为准。(免责声明:本篇分享所涉及的图文资料仅供参考,具体以最终签订的买卖合同为准,部分图片素材来自网络,如有侵权请联系小编删除,感谢支持)
声明:本文由入驻焦点开放平台的作者撰写,除焦点官方账号外,观点仅代表作者本人,不代表焦点立场。
