青浦宝龙中心头条发布(2025青浦宝龙中心办公楼出售)首页网站-青浦宝龙中心优缺点分析
扫描到手机,新闻随时看
扫一扫,用手机看文章
更加方便分享给朋友
青浦宝龙写字楼出售@「 青浦宝龙中心B座 」地铁上盖350-1800㎡ 现房甲级写字楼
预约热线:先拨打400 9939 116听到提示音后再拨分机号900【售楼中心】
微信咨询:134-0209-6359(微信同号)加微信请备注:【青浦宝龙写字楼】
🔥🔥售楼中心——欢迎来电咨询〢预约内部优惠价格!看房需提前预约登记,来电预约免费看房班车!
链接大虹桥 面向长三角
【项目概况】
青浦宝龙广场 于2018年9月开业,35万方城市旗舰综合体,涵盖购物中心、风情商业街、高端酒店、5A级甲级写字楼、办公产品等全业态覆盖。已实现日均5.16万客流量,节假日可达8-10万客流
【产品信息】
可售办公21#楼 地铁17号线上盖*5A甲级写字楼* 青浦新城稀缺品质办公
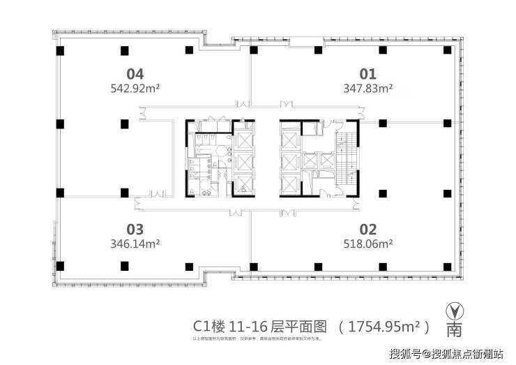
建筑面积:31655㎡(5-22f)
标准层面积:约1800㎡ ,一层4套
单套面积:350-550㎡
售价:均价2.3万/㎡
1、具体参数:
电梯:客梯6部,货梯2部
层高:大堂11米,办公层高4米(未吊顶)
空调系统:VRV空调系统、24h可控
车位租金:700元/月、400元/月
产权年限:50年(2014年拿地)
产权性质:办公
开发商:宝龙集团
物业公司:宝龙物业
物业费:12元/月/㎡
交付时间:现房随时交付
主力产品:约350-1800㎡商务标办(方正无柱空间,全玻璃幕墙)
项目地址:青浦区汇金路590号近盈港东路(地铁17号线汇金路站上盖)
2、标准层实景现房图:
3、平面图:
【产品优势】
1、稀缺小面积办公 投资自用两相宜
一层4本产证,现房销售,小面积低总价;拥有区域内最繁华商业综合体配套,且地铁上盖,尽享商务便利。商业人气、商务氛围双利好;方正无柱空间,全玻璃幕墙设计,高得房率及品质保证,是投资或自用的最佳选择。
2、青浦新城 国家战略高地
项目位于上海西门户、长三角一体化发展示范区——青浦新城核心商务区,坐拥“长三角一体化发展”和“虹桥国际开放枢纽”两大国家战略利好。链接大虹桥,面向长三角。
青浦新城是上海十四五规划“五大新城”之一,据规划政府将投入上千亿打造独立性综合枢纽城市,例如将建成“青嘉吴城际线”、“嘉青松金线”和地铁17号线三网合一综合枢纽,扩容G50沪蓉高速,完工“崧泽高架”西延伸等。项目位于17号线汇金路上盖,坐拥交通利好。
3、品牌背书
宝龙集团 于1990年在澳门成立,距今已经32年。宝龙是双上市公司(2009年宝龙地产上市,2019年宝龙商业在香港上市)。“中国房地产开发企业五十强”、“中国商业地产标杆企业五强”,一直专注于商业地产的开发运营。全国布局40座城市,公司旗下已布局达140个商业项目,累计已开业商业项目近90个,其中上海商业项目16个。
秉承“让空间有爱”的企业使命,宝龙产业经营不断拓展,形成地产、商业、文旅等多元产业协同发展的格局,旨在成为受人尊敬的百年企业,全球领先的城市商业运营商。截至目前,宝龙集团总资产超两千亿。
宝龙地产自2003年起专注开发运营综合性商业地产项目,2009年在香港成功上市,并连续十七年获得“中国房地产百强企业”、连续十一年获“中国商业地产公司品牌价值TOP10”等荣誉。
预约热线:先拨打400 9939 116听到提示音后再拨分机号900【售楼中心】
微信咨询:134-0209-6359(微信同号)加微信请备注:【青浦宝龙写字楼】
🔥🔥售楼中心——欢迎来电咨询〢预约内部优惠价格!看房需提前预约登记,来电预约免费看房班车!
声明:本文由入驻焦点开放平台的作者撰写,除焦点官方账号外,观点仅代表作者本人,不代表焦点立场。
